Senior Living in Falkensee
seniorengerechtes Wohnen

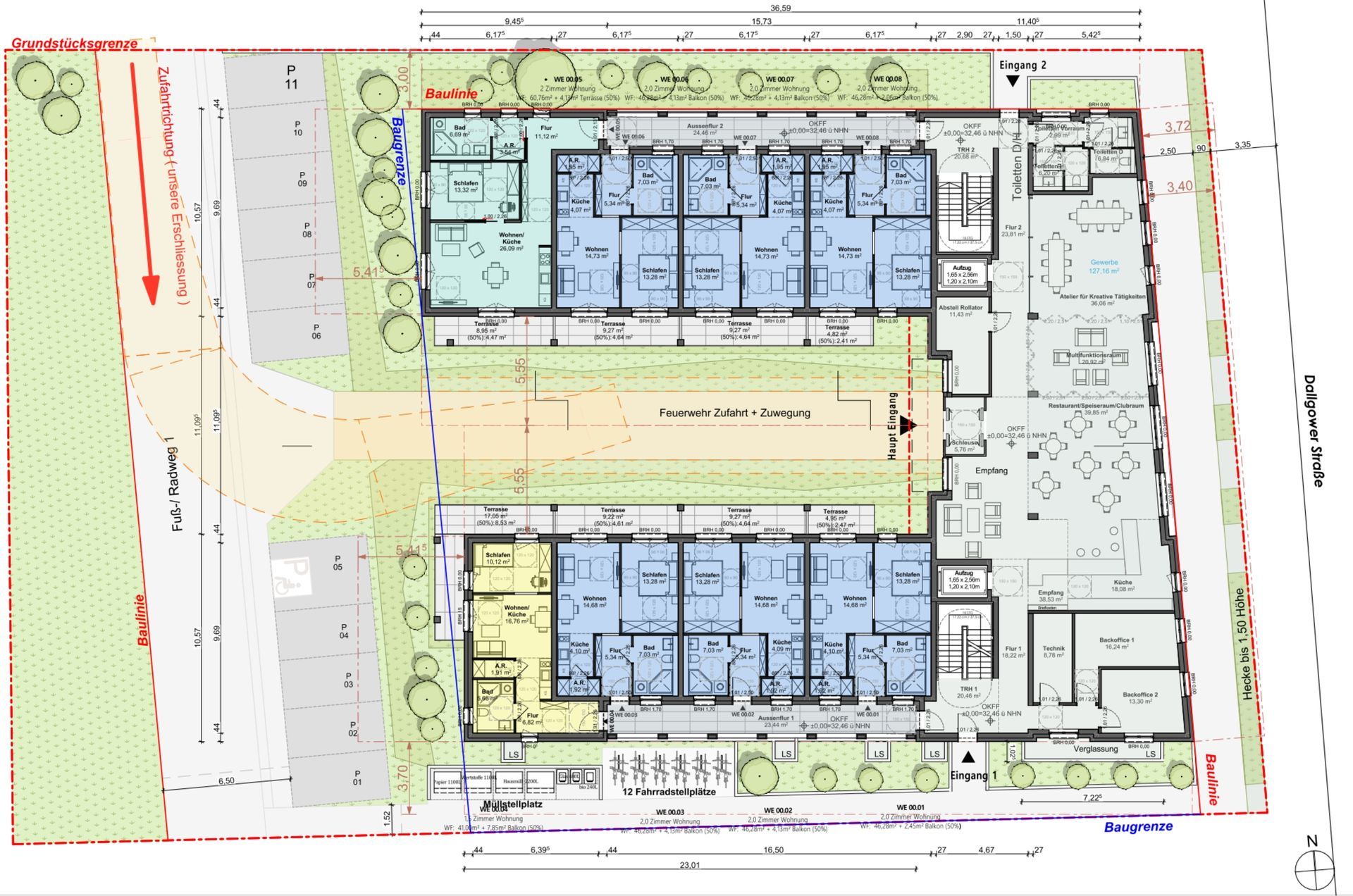
Senior Living ist das Konzept, Service-Wohnen und Serviceleistungen zur Verfügung zu stellen, die maßgeschneidert auf die Bedürfnisse älterer Menschen angepasst sind. Unter dem Begriff des Service-Wohnens verstehen wir also eine Wohnform, die bis ins hohe Alter ein unabhängiges, aktives Leben im eigenen Zuhause ermöglicht.
Das Einzigartige am Senior Living sind seine Service-Komponenten durch einen Betreiber. Neben dem Angebot von Verwaltungsleistungen, werden Hilfe im Haushalt, Unterstützung in bürokratischen Fragen, Organisation für kulturelle und gesellschaftliche Teilhabe sowie das Arrangement weiterer Freizeitbetätigungen angeboten. Individuelle Gesundheitsförderung und das selbstbestimmte, würdevolle Leben jedes Einzelnen im Alter stehen bei dieser Form des Wohnens im Mittelpunkt.
Weiterhin achten wir auf eine baulich und technisch hochwertige Ausstattung. Neben Fahrstühlen und einer barrierefreien Bauweise, wird es Gegensprech- und Notruf-systeme für Komfort und Sicherheit geben.








